Design Engineering
Experience the best quality Engineering Design and Product build of Control Panels for a multitude of Industries and environments. Performance Assured!
Our Design Engineering services offers optimal design for control panels and process requirements based on your needs that suits best for the process control and monitoring in the longer run.
Process study / Application Study
Our experts do a detailed study of your process requirement and check the feasibility to implement cost-effective automation solutions. In this process we understand your Field instruments requirement, Inputs & Outputs list and offer solutions accordingly.
Product Selection/Configuration
Selection of the right product for the Process Automation is very important for a long-term functionality and scalability. We ensure to give you the right selection of product brands and position according to client needs.
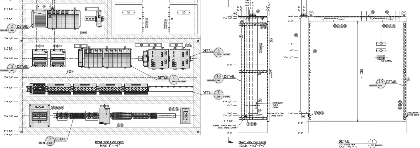
System Architecture and Control Panel Design
An overview of the Automation System architecture is crucial to know how the plant is monitored and controlled. This means connectivity of the system and the level of access. We prepare System Architecture for control system to give an overview of the plant connected Automation systems.
Detailed design engineering / Value Added Services
Our design engineering services includes complete documentation for Automation Panels consisting of Single Line Diagram, General Arrangement, Power and Control Circuits as per electrical standards. Value Added Services like Annual Maintenance Contracts, PLC programming and HMI development.
